SSTC

Florence Road, Stroud Green
Offers In Excess Of £650,000

About the Property

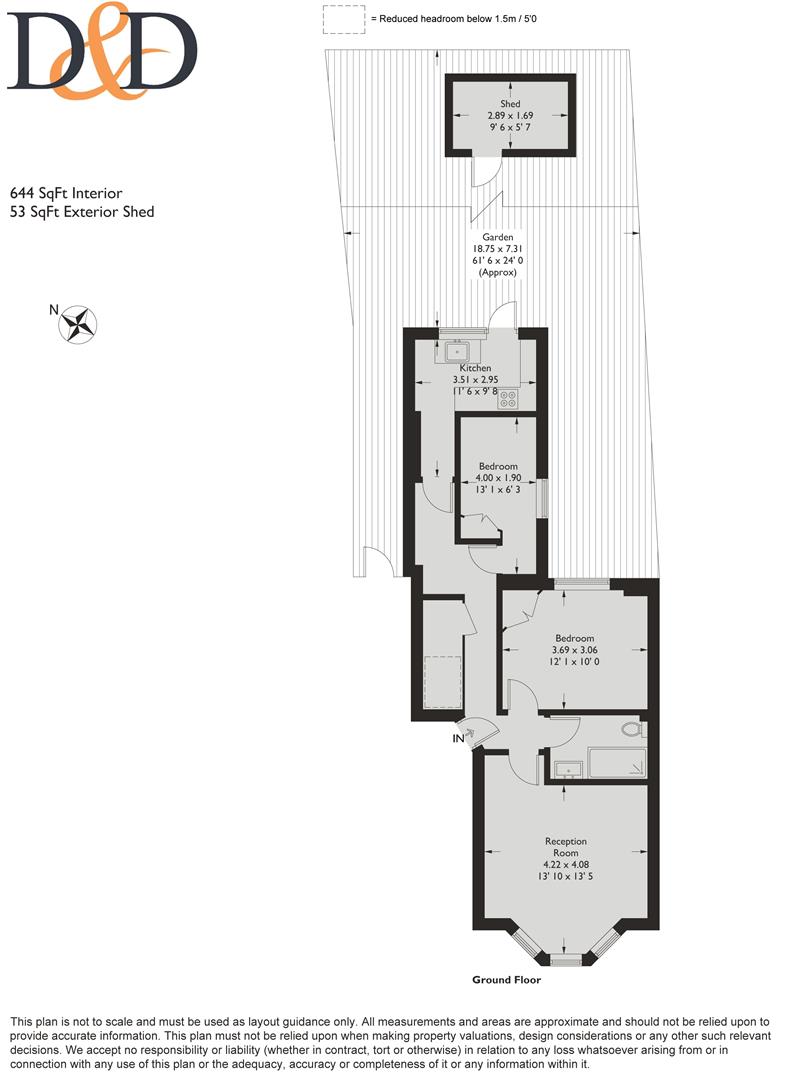
Tucked behind a handsome Victorian frontage on Florence Road, this thoughtfully arranged two bedroom garden apartment offers a calm, characterful home with a rare sense of separation between living, working and outdoor life.

The reception room sits proudly at the front of the property, bathed in natural light from a wide bay window with plantation shutters and original floorboards. Period charm is balanced with a clean, contemporary feel, while there’s generous space for both dining and relaxed evenings in. It’s a room that feels quietly sociable rather than showy – ideal for long suppers, music, or an unhurried Sunday morning.

Moving through the home, the layout gently shifts from public to private. The principal bedroom is a comfortable double with soft proportions and built-in storage, while the second bedroom works equally well as a guest room, nursery or study, positioned away from the main living space. The bathroom is crisp and modern, finished with white subway tiling, patterned flooring and a full-sized bath with overhead shower.

At the rear, the kitchen is bright and well-considered, fitted with clean white cabinetry, warm wooden worktops and open shelving. Glazed doors open directly onto the garden, creating an easy flow between inside and out. The garden itself is a genuine highlight – private and not overlooked due to backing on to the famous Parkland Walk, it is also leafy and generously sized, with space for outdoor dining and gardening. At the far end sits a fully powered garden studio, currently set up as a home office, offering valuable extra space that feels separate from the main house yet connected to it.

Florence Road is a peaceful residential street, well placed for the open green spaces of Finsbury Park and the cafés, bakeries and independent shops of Stroud Green Road. Excellent transport links are close by, with easy access to the City, West End and beyond.

  • 2 bedroom flat
  • Private garden
  • Share of freehold
  • Backing on to the Parkland walk
  • Fully powered garden office
  • 0.4 miles to Finsbury Park Station
Property Brochure Floorplan Mortgage Calculator Stamp Duty Calculator Book a Viewing

About the Property

Tucked behind a handsome Victorian frontage on Florence Road, this thoughtfully arranged two bedroom garden apartment offers a calm, characterful home with a rare sense of separation between living, working and outdoor life.

The reception room sits proudly at the front of the property, bathed in natural light from a wide bay window with plantation shutters and original floorboards. Period charm is balanced with a clean, contemporary feel, while there’s generous space for both dining and relaxed evenings in. It’s a room that feels quietly sociable rather than showy – ideal for long suppers, music, or an unhurried Sunday morning.

Moving through the home, the layout gently shifts from public to private. The principal bedroom is a comfortable double with soft proportions and built-in storage, while the second bedroom works equally well as a guest room, nursery or study, positioned away from the main living space. The bathroom is crisp and modern, finished with white subway tiling, patterned flooring and a full-sized bath with overhead shower.

At the rear, the kitchen is bright and well-considered, fitted with clean white cabinetry, warm wooden worktops and open shelving. Glazed doors open directly onto the garden, creating an easy flow between inside and out. The garden itself is a genuine highlight – private and not overlooked due to backing on to the famous Parkland Walk, it is also leafy and generously sized, with space for outdoor dining and gardening. At the far end sits a fully powered garden studio, currently set up as a home office, offering valuable extra space that feels separate from the main house yet connected to it.

Florence Road is a peaceful residential street, well placed for the open green spaces of Finsbury Park and the cafés, bakeries and independent shops of Stroud Green Road. Excellent transport links are close by, with easy access to the City, West End and beyond.

Floorplan

Mortgage Calculator

Stamp Duty

Get in Touch

Address

85 Stroud Green Road

Finsbury Park

London, N4 3EG

Opening Times

Mon – Thurs: 0900 – 1815
Fri: 0900 – 1800
Sat: 1000 – 1600
Sun: Appointments by request

 

 

 

Newsletter

* indicates required

By submitting your details you are consenting to Davies & Davies sending you their newsletter. You can request to have your data changed or removed at any time - please see our Privacy Policy.